
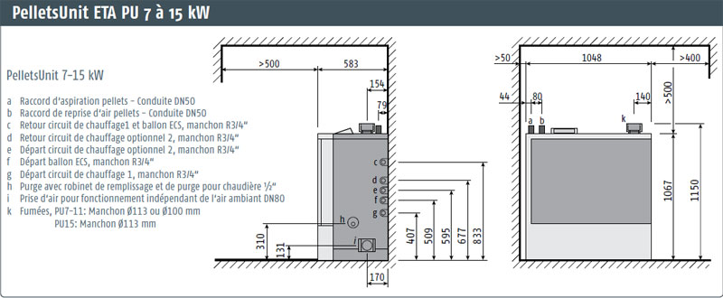
Notre nouvelle petite chaudière ne prend que très peu de place…
Ce modèle est disponible dans les puissances suivantes :
• La chaudière à pellet « Pellets Unit » ETA PU 7 kW
• La chaudière à pellet « Pellets Unit » ETA PU 11 kW
• La chaudière à pellet « Pellets Unit » ETA PU 15 kW
* Toutes les brochures et manuels
Petite et compacte
Chauffez-vous confortablement et durablement avec des pellets de bois. Notre chaudière ETA PU trouve sa place partout dans votre maison. Savourez le plaisir de vous chauffer en respectant l’environnement et ne plus être dépendant du fioul et du gaz.
|
|
Où est la chaufferie?
Vous n’avez pas de place pour une chaufferie? Pour votre maison basse énergie, nous avons une chaudière à pellets de 7 à 15 kW qui trouvera sa place dans votre cave, débarras ou même une pièce de vie.
Compacte et complète!
Notre chaudière PelletsUnit est équipée de série d’une pompe et d’une vanne mélangeuse pour le chauffage, d’une vanne de commutation pour l’ECS, d’un vase d’expansion, d’un circuit de bouclage de l’échangeur et naturellement d’une régulation complète à sonde extérieure.
La chaudière posée, et votre chaufferie est opérationnelle ! Un silo de 1,6 m x 1,6 m ou de 2,5 x 1,0 m dans la cave, au grenier ou tout autre endroit inutilisé suffit. Egalement un silo enterré peu convenir.
Une fois par jour, la chaudière aspire ses pellets par l’intermédiaire de deux flexibles – par ce principe, le silo peut être disposé à l’opposé de la maison! La chaudière est commandée par un écran tactile intégré (115 x 86 mm) Du bout du doigt vous pouvez augmenter ou diminuer votre confort.
L’ETA PelletsUnit en quelques mots:
• conception compacte – ne prend que peu de place
• tous les raccords sont latéraux ou par le dessus – la pose contre un mur est possible
• le circuit mélangé de chauffage et le vase d’expansion sont intégrés à la chaudière
• groupe de relevage avec échangeur thermique et vanne d’inversion ECS intégrés
• sécurité anti-incendie maximale par écluse et foyer à dépression
• décendrage automatique de l’échangeur par turbulateurs
• sonde LAMBDA pour une combustion optimale et allumage automatique contrôlé
• foyer en inox réfractaire pour de meilleures valeurs de combustion
• grille de combustion à décendrage automatique et évacuation des cendres dans un cendrier amovible
• régulation complète intégrée dans la chaudièrecommande par écran tactile
Deux pressions du doigt :
suffisent pour accéder à l’ensemble des fonctions de régulation de chauffage sur l’écran tactile, régler le chauffage sur une température supérieure ou inférieure, visualiser la quantité de pellets contenue dans le silo ou la chaleur accumulée par l’installation solaire.

Accessible partout et à tout moment :
Imaginez un instant : dans la confusion qui accompagne votre départ en vacances, vous avez oublié de couper le chauffage. Si votre chaudière ETA est connectée à l’Internet, elle est alors accessible depuis votre voiture à l’aide d’un smartphone et la température de consigne peut être abaissée.
Il est également possible d’utiliser un smartphone ou une tablette PC comme télécommande à l’intérieur de la maison pour la chaudière et l’ensemble de l’installation de chauffage.
Une solution propre :
Une chaudière plus propre permet une meilleure utilisation du combustible.
La grille rotative brevetée est autonettoyante et les cendres générées par la chaudière sont transportées et concentrées automatiquement dans un cendrier à l’aide de vis sans fin.
Le cendrier ne doit être vidé que deux à trois fois par an et se range très facilement et de manière ultradiscrète derrière le couvercle coullisant.
Vous avez oublié de vider le cendrier ? La chaudière PelletsUnit vous enverra un rappel par e-mail.


Une chaufferie complète dans la chaudière :
Un circulateur de chauffage électronique (label énergie A) avec vanne mélangeuse, un vase d’expansion (18 litres), des robinets de sécurité et une vanne de commutation pour le chargement du ballon ECS sont intégrés prêts à l’emploi dans la chaudière, constituant ainsi une « chaufferie » compacte dans la chaudière avec des coûts de montage minimes.
Il est même possible de monter un deuxième circuit de chauffage dans la chaudière PelletsUnit.
Peu bruyante grâce à un allumage céramique silencieux, la chaudière PelletsUnit permet de se passer d’un lieu d’installation séparé.

Votre chaufferie devient multifonctionnelle :
Grâce au faible encombrement de la chaudière PelletsUnit ,la nouvelle chaufferie peut être utilisée pour vos loisirs.
L’alimentation en air de combustion indépendante de l’air ambiant permet à la PelletsUnit de fonctionner même dans une pièce disposant d’une ventilation mécanique contrôlée (VMC).
Dans ces cas, la chaudière est raccordée en direct sur une prise d’air extérieure.
Trois façades pleines d’élégance en option :
Le nouveau modèle standard PelletsUnit est livré avec un design « gris métal glacé », dont la sobriété et la noblesse plaisent aux puristes.
Vous pouvez également offrir à votre chaudière l’un des coloris optionnels : « métal anthracite », « bois sombre » ou « cuir noir », c’est à vous de choisir !
Et si le coloris initial n’a plus vos faveurs, vous pouvez parfaitement remplacer la façade ou la configurer vous-même.
|
|
|
La façon la plus simple d’utiliser une chaudière PelletsUnit :
Installez la chaudière, raccordez les éléments chauffants, le ballon ECS, le silo à pellets et la cheminée : la chaufferie est prête.
Toutes les pompes et vannes requises sont déjà montées, régulation incluse, et prêtes à l’emploi dans la chaudière PU.
Un deuxième circuit de chauffage peut être ajouté ultérieurement à la chaudière ou des capteurs solaires peuvent être raccordés au ballon ECS.
La régulation requise à cet effet est aussi déjà incluse dans la chaudière.
Le ballon ECS ne doit pas être installé dans la chaufferie. Il peut être monté indépendamment de la chaudière, de préférence directement à proximité des robinets d’eau chaude, de manière à ce que l’eau chaude puisse couler rapidement du robinet même en l’absence d’une boucle de circulation.
Pour plus de confort, il est préférable d’opter pour un ballon ECS d’un volume minimum de 200 litres.

Une chaudière à pellets moderne peut chauffer « sur demande », au même titre que les chaudières au mazout/gaz que nous utilisons habituellement.
L’alimentation en combustible fait la différence
La transformation du mazout en matière plastique est une technique de plus en plus répandue, il suffit de penser aux carrosseries de nos voitures ou aux canalisations de nos maisons.
Du fait de cette nouvelle demande, le mazout et le GPL (ce dernier étant également un produit du pétrole) deviennent de plus en plus rares et donc plus chers.
Avec le bois, nous pouvons nous inscrire dans un cycle dénué d’impact sur l’environnement.
Le bois repousse continuellement dans les forêts sous l’effet de l’énergie solaire et du dioxyde de carbone généré par la combustion du bois.
La régulation ETAtouch de base permet de gérer deux circuits de chauffage (radiateurs ou plancher chauffant), la gestion d’un ballon tampon, la préparation ECS (accumulateur ou échangeur ECS) et une installation solaire simple avec les kits de sondes nécessaires.
En option des sondes d’ambiances peuvent encore augementer le confort au niveau de la gestion de la température ambiante.
Raccordement aisé des capteurs solaires avec rendement hivernal accru :
L’intégration de capteurs solaires est aussi simple qu’efficace avec un ballon tampon.
En hiver, il est difficile pour le capteur solaire d’atteindre les 60° nécessaires à la préparation d’ECS.
Le rendement du capteur est largement supérieur en hiver du fait des températures plus basses d’un plancher chauffant.
Si les circuits de chauffage et le capteur solaire sont raccordés directement au tampon, la chaleur solaire peut être intégrée directement dans le plancher chauffant dans la partie inférieure du tampon.
En été, si le chauffage n’est pas activé, la chaleur augmente et le capteur solaire demeure ainsi « automatiquement » disponible pour l’eau chaude sanitaire.
Pour une maison d’habitation, un ballon tampon de 800 litres associé à de capteurs solaires de 8 m² à 12 m² a démontré toute leur efficacité.

Ballon tampon ?
Un ballon tampon absorbe la totalité de la puissance de la chaudière et met la chaleur effectivement requise à disposition de l’habitation et de la préparation ECS.
Une régulation individuelle pièce par pièce notamment connaît des phases lors desquelles la demande de chaleur est très faible. Cependant, les régulations habituelles pour circuits de chauffage présentent également des charges calorifiques très faibles en automne et au printemps, et il en va de même pour la préparation ECS en été. Un ballon tampon peut mettre à disposition ces faibles puissances et réduire les mises en marche de la chaudière, ce qui permet des économies de combustible et un fonctionnement optimisé de votre installation.
Eau chaude sanitaire (ECS) :
Si l’eau chaude est conservée de manière prolongée dans un boiler classique sans être utilisée, les germes et les bactéries vont alors proliférer sans aucune contrainte.
L’échangeur ECS à production instantanée génère une eau chaude sanitaire au moment où la demande se présente à l’aide d’un échangeur de chaleur à plaques Inox.
Un tampon avec échangeur ECS peut être installé à la place du ballon ECS classique. Il n’occupe au maximum qu’un demi-m² de surface supplémentaire.
ETA Technique

A – Nettoyage garanti avec la grille rotative brevetée
Lorsque la quantitée de pellets brûlés atteint 20 à 30 kg, un nettoyage automatique est effectué.
La grille est alors tournée à travers d’un peigne afin de dégager les cendres et les scories de la fente d’aération.
Le lit de braises est attisé par de petits mouvements de la grille pour obtenir la meilleure fin de combustion possible avec une production de cendres minimale.
Les cendres de la chaudière sont ensuite transportées par 2 vis sans fin dans un cendrier externe étanche amovible.

B- Sas rotatif pour plus de sécurité
Le sas rotatif à mono chambre ETA garantit une sécurité absolue contre les retours de flamme.
Les pellets sont dosés et transportés du réservoir intermédiaire interne à la roue cellulaire rotative par une vis d’alimentation.
Les pellets ne doivent donc pas être coupés et les joints de bord ne doivent pas être protégés contre toute usure.
La sécurité contre les retours de flamme reste ainsi garantie sur l’ensemble de la durée de vie de la chaudière.

C- Dépression sécurisée avec ventilateur de tirage
Le ventilateur de tirage silencieux à vitesse variable (seulement 57 watts) avec notification de la vitesse de rotation assure une dépression constante et ainsi une sécurité de fonctionnement élevée, indépendamment du tirage de cheminée. Avec un tirage de cheminée jusqu’à 15 Pa, aucun modérateur de tirage n’est requis.

D- Utilisation optimale du combustible avec sonde Lambda
Pour assurer une combustion propre et un rendement élevé, la chaudière ETA PU est équipée en série d’une sonde Lambda.
Cette sonde permet à la régulation d’optimiser l’arrivée d’air en fonction de la puissance.
De plus, le comportement de fin de combustion des pellets de qualité diverse est compensé.

E- Une régulation complète pour votre installation de chauffage
Contrôle de qualité de la combustion, alimentation en pellets, gestion de tampon, préparation ECS (accumulateur ou échangeur ECS), régulation climatique des circuits de chauffage , programme hebdomadaire pour deux circuits de chauffage, installation solaire, contrôle actif de l’ensemble des fonctions et entraînements, sécurité en cas de manque d’eau, connexion LAN pour commande à distance via Internet (ordinateur, Tablette PC ou smartphone) et port USB.

F- Allumage silencieux avec résistance d’allumage en céramique
La sonde Lambda indique si l’allumage a réussi et réduit la durée d’allumage afin d’économiser de l’électricité et de l’argent.

1- Turbine d’aspiration pour le transport des pellets
du silo principal au réservoir intermédiaire de la chaudière à l’aide de tuyaux flexibles en plastique DN50 d’une longeur max. de 20 m
2- Le réservoir journalier à pellets
d’une capacité de stockage de 30 kg réduit la durée de transport des pellets à 5 minutes, 1 à 2 fois par jour.
L’heure la plus adéquate de la journée pour le transport des pellets peut être définie
3- Foyer en inox chaud
pour des valeurs d’émission minimales même à puissance partielle et une longue durée de vie de chaudière
4- Prise d’air
Fonctionnement indépendant de l’air ambiant avec aspiration de l’air de combustion (tuyau DN 80 isolé contre l’eau de condensation) possible depuis l’extérieur
5- Nettoyage automatique
des carneaux de l’échangeur de chaleur grâce à la mise en mouvement des ralentisseurs de fumées «turbulateurs»
6- Le système de décendrage automatique
comprime les cendres dans un cendrier externe amovible.
D’une capacité de 12 litres, celui-ci ne doit être vidé que deux à trois fois par an
7- Pompe de circulation (label énergie A)
avec mélangeur départ pour fonctionnement en direct sur un circuit de chauffage ou vanne de recyclage en mode tampon
8- Vanne de commutation
pour le chargement du ballon ECS avec le même circulateur
9- Robinets de sécurité intégrés
Le vase d’expansion de 18 litres, la soupape de sécurité, une mesure de pression avec sécurité en cas de manque d’eau et un dispositif de purge dans la conduite de départ chaudière sont déjà installés et prêts à l’emploi.
En raison de la faible quantité de combustible contenue dans la chaudière, aucune soupape thermique n’est requise
10- Sonde de température des fumées
pour un contrôle actif du fonctionnement
Stocker et transporter le combustible avec le système
Distance max. 20 m entre la chaudière et le silo
Les concepts de silo ETA peuvent être adaptés à chaque situation et combinés à un système de convoyage pneumatique à l’aide de tuyaux flexibles montés entre le silo à pellets et la chaudière.
La turbine d’aspiration intégrée dans la chaudière surmonte sans problème les distances de max. 20 m ainsi que les différences de hauteur correspondant à deux étages.
Un réservoir journalier à pellets de 30 kg réduit la durée de transport des pellets à 5 minutes, 1 à 2 fois par jour.
L’heure la plus adéquate de la journée pour le transport des pellets peut être définie dans la régulation.
Chaque local, y compris les locaux pour citerne à mazout, peut être adapté de manière optimale en silo à pellets à l’aide du système d’alimentation modulaire ETA.
La vis d’alimentation, la solution standard ETA
Le silo est vidé intégralement et en toute sécurité à l’aide d’une vis de 1 à 5 m couvrant toute la longueur du silo. En séparant l’alimentation (vis sans fin) et le transport (turbine d’aspiration), les tuyaux peuvent être aspirés après chaque transport et des sections ascendantes sont possibles sur une hauteur correspondant à deux étages.



Sondes d’aspiration si aucune vis ne peut être montée
Pour les silos pour lesquels le montage d’une vis pose problème (espace de dégament ou passage de mur insuffisant), ETA propose un système d’alimentation pneumatique pouvant compter jusqu’à quatre ou huit sondes d’aspiration.
Les sondes sont regroupées au sein d’un système de commutation automatique.

Sonde d’aspiration individuelle
Une sonde d’aspiration individuelle est la solution la plus économique (75 € seulement), prévue pour un silo à chargement par sacs ou un petit silo silo à chargement par camion souffleur (maximum 3 à 4 tonnes).
Cette solution est très flexible. Vous pouvez réaliser un silo sur mesure, en bois généralement, adapté à la configuration spécifique de votre espace dédié au stockage des pellets.
Le système ETA est évolutif grâce à la turbine d’aspiration intégrée d’origine dans toutes les chaudières à pellets ETA. Vous pouvez commencer avec une simple sonde d’aspiration pour ménager votre budget et faire les modifications pour passer à un plus gros silo plus confortable ensuite (ETABOX, silo sur mesure avec vis sans fin ou plusieurs sondes d’aspirations ou silo enterré).

ETABOX : La solution du silo textile
Avec l’ETABOX, vous avez une solution simple d’installation, préfabriqué en usine, simple à monter. La structure acier avec pans inclinés offre une fiabilité et longévité à long terme. Le textile du silo apporte la flexibilité sur le positionnement de la hauteur en fonction de votre lieu de stockage.
• Dimensions au sol de 1.2 m sur 1.2m à 2.9 m sur 2.9 m.
• Hauteur ajustable de 1.8 m à 2.5 m.
• Contenance jusqu’à 8,8 tonnes de pellets.


La citerne enterrée
S’il n’y a vraiment plus de place dans la maison. Une citerne enterrée pour pellets disponible sur www.geoplast.com peut par exemple être proposée.

Deux pressions du doigt
suffisent pour atteindre sa destination sur l’écran tactile de la régulation ETAtouch.
L’écran dispose de nombreuses icônes intuitives.
La première pression sert à sélectionner la partie souhaitée de l’installation de chauffage. Une deuxième pression permet de sélectionner la fonction à modifier.
On retrouve cette convivialité d’utilisation pour l’ensemble de l’installation de chauffage, y compris pour les capteurs solaires.
Accès à distance avec ETAtouch
Avec ETAtouch, il est possible de commander la chaudière à distance à l’aide d’un smartphone, d’une tablette PC ou d’un ordinateur si la chaufferie dispose d’une prise LAN avec une connexion Internet ou WI-FI.
Gestion sans stress
avec la fonction « congés » Il est possible d’indiquer les dates de départ et de retour dans la régulation quelques jours avant les congés.
Le chauffage abaisse la température de consigne pendant la période indiquée et se remet en marche avant le retour de vacances.
La commande à distance permet également de basculer en mode chauffage réduit sur la route des vacances à l’aide d’un smartphone. Et, si la date de votre retour est avancée, le chauffage peut être remis en marche de façon anticipée depuis votre lieu de vacances à l’aide de votre smartphone.
Accessible dans le monde entier via « meinETA »
L’accès à distance s’effectue via la plateforme Internet « meinETA », sans frais pour les clients ETA.
Une fois connecté à cette plateforme, la chaudière est accessible partout dans le monde via Internet, tablette PC en main sur le canapé du salon, devant son ordinateur dans une chambre d’hôtel et, bien entendu, à l’aide d’un smartphone. L’accès à la chaudière est naturellement protégé par identification et mot de passe.

En cas d’oubli de votre part, votre chaudière vous envoie un e-mail
Si le cendrier ne doit être vidé qu’une ou deux fois par an sur une chaudière fonctionnant normalement, il est inutile de procéder à une vérification quotidienne.
Si une intervention humaine est requise, la chaudière vous enverra alors un e-mail.
Une meilleure préparation pour l’entretien
En cas de panne, un accès à distance à la chaudière peut être accordé au chauffagiste ou au service clientèle.
Ainsi, les interventions de maintenance seront mieux préparées, le technicien du service clientèle disposant des pièces de rechange adéquates.
Un professionnel peut intervenir via la commande à distance.
Le service clientèle ne doit même pas intervenir car les défauts mineurs peuvent être réparés directement par le client via une assistance téléphonique après un diagnostic à distance par un professionnel.
ETAtouch – tout est réglé
Toutes les fonctions pour les deux circuits de chauffage, la préparation ECS (accumulateur ou échangeur ECS) et l’installation solaire sont déjà présentes dans la régulation ETAtouch, et ce sans supplément.
Une connexion LAN pour la commande à distance à l’aide d’un ordinateur, d’un iPad, d’un iPhone ou d’un smartphone est également disponible via le modem Internet du client.
Version de base de la régulation ETAtouch
• Régulation de la puissance à l’aide du ventilateur de tirage à vitesse variable en fonction des températures de la chaudière, du tampon et des fumées
• Régulation de la combustion avec adaptation au combustible par la sonde Lambda
• Contrôle continu de l’état de service tel que la valeur d’O2 résiduelle dans les fumées via la sonde Lambda et la température des fumées, les températures de la chaudière et de l’accumulateur, le recyclage du retour, les signaux de retour de vitesse du tirage, la position de la grille rotative, le niveau du lit de braises, la réserve de combustible, la pression d’eau, messages d’erreur et indications de dépannage en texte clair
• Allumage automatique avec réduction du temps d’allumage grâce à la sonde Lambda.
• Pompe de charge tampon à vitesse variable avec gestion de la puissance
• Recyclage du retour à l’aide d’une vanne mélangeuse capable d’utiliser la chaleur résiduelle
• Deux circuits de chauffage avec régulation climatique, avec programmes hebdomadaires, trois périodes de chauffe par jour, fonction ralenti-relance, mode chauffage réduit pour les congés, sonde d’ambiance et télécommande en option.
• Préparation ECS avec accumulateur, échangeur ECS ou échangeur ECS interne tubulaire dans le ballon tampon, avec programme hebdomadaire
• Pompe de circulation ECS programmée ou, dans le cas d’un échangeur ECS, allumage par ouverture brève du robinet, pour la boucle sanitaire
• Installation solaire avec pompe à vitesse variable, bilan calorimétrique en mode solaire
• Gestion de puissances de pointe de la chaudière ou régulation pour plusieurs chaudières à pellets en cascade
• La chaudière peut être bloquée lors d’apports extérieurs de chaleur, de façon à faire commuter les récepteurs vers la source externe de chaleur
• Thermostat à configuration libre ou thermostat de température différentielle, par exemple pour un deuxième ballon ECS
• Affichage jusqu’à 5 températures au choix
• Connexion LAN pour la commande à distance via Internet
• Port USB, pour les sauvegardes et update software Extension facultative avec armoire murale
Extension de régulation facultative avec armoire murale
• Deux circuits de chauffage supplémentaires, jusque 4 circuits mélangés par boitier.
• Demande de chauffage externe avec température de départ chaudière constante
• Installations solaires complexes avec chargement par stratification ou 2 accumulateurs
• Pompe pour réseau de chaleur (ou récepteurs externes) avec/sans vanne mélangeuse
Exemple de schéma hydraulique pour l’installation du chaudière pellets PU 7-15 Kw en direct sur un circuit chauffage sol et circuit chauffage radiateur, avec un raccordement à un boiler sanitaire solaire simple.
Exemple de schéma hydraulique pour l’installation du chaudière pellets PU 7-15 Kw avec ballon tampon raccordé au panneaux solaires thermiques, production d’eau chaude sanitaire par échangeur à plaques inox ETA, 3 circuits de chauffages radiateurs et un circuit chauffage sol.





