
Chaudière à pellets de grande puissance pour immeubles d’habitations, commerciaux et châteaux.
Ce modèle est disponible dans les puissances suivantes:
• Chaudière à pellets ETA ePE-K (Taille 1) – 100 kW, 110 kW, 120 kW ou 130 kW
• Chaudière à pellets ETA ePE-K (Taille 2) – 140 kW, 150 kW, 160 kW ou 170 kW
• Chaudière à pellets ETA ePE-K (Taille 3) – 180 kW, 199 kW, 220 kW ou 240 kW

Idéal pour les constructions nouvelles et la rénovation

Les besoins calorifiques dans les grands bâtiments collectifs et les immeubles commerciaux sont souvent très élevés, générant ainsi des frais élevés de chauffage et d’eau chaude sanitaire dans tous les cas, et surtout si on continue de miser sur les combustibles fossiles.
Opter pour les énergies renouvelables est rentable avant tout, quand c’est aussi simple comme avec ETA. Lors de la conception de la chaudière à pellets ePE-K ETA, la société de qualité certifiée « Made in Haute-Autriche » ciblait en outre des immeubles d’habitation, en particulier la rénovation.
Ainsi, pour le remplacement de la chaudière, normalement il y a peu de transformations à effectuer et les éléments existants peuvent être réutilisés au mieux. Par exemple, un silo à pellets peut être disposé jusqu’à 20 m de distance de la chaudière en remplacement de la cuve à fioul.
Qualité en série
Même si les besoins calorifiques sont très élevés, la chaudière ePE-K d’ETA est à la hauteur du défi.
Deux, trois, voir encore plus de chaudières peuvent être montées en parallèle.
Cette variante structurelle, nommée construction modulaire ou en cascade, a été perfectionnée par ETA afin de simplifier au maximum l’intégration dans l’installation existante et réduire au maximum les dépenses concernant les canalisations, les volumes des ballons tampons, les pompes et le montage.
Contrôle total, partout
La régulation est le coeur d’une installation de chauffage efficace pouvant intégrer aussi une installation solaire ou un petit réseau de chaleur de proximité.
Avec une surveillance active de toutes les fonctions et un SAV à distance par portable et Internet, la chaudière est spécialement conçue pour l’utilisation en exploitation.
Fonctionnement sécurisé grâce à des contrôles actifs
La surveillance complète et la notification des données chaudière les plus diverses, comme la vitesse de rotation du tirage, la consommation de courant des moteurs, des vis sans fin, la position des clapets d’aération, l’oxygène résiduel dans les fumées, le recyclage retour,
la température des fumées ou les températures de l’eau de chauffage, garantissent un fonctionnement sécurisé.
Contrôle total, partout
Faire des économies de chauffage, contribuer au développement de l’économie locale et protéger l’environnement : se chauffer avec des pellets, c’est tout bénéfice. Une augmentation brutale des prix est exclue dans le futur, car la matière première du bois se régénère sans cesse.
Actuellement, en Autriche, un excédent d’environ 7 millions de mètres cubes solides se régénère par an par rapport à la consommation — et la superficie des forêts ne cesse de croître en Europe.


Toujours de la place pour les granulés de bois
Pour un maximum de confort, le silo à granulés de bois peut être installé à l’emplacement initial d’un réservoir à fioul. Il est inutile de l’installer à proximité immédiate de la chaudière. Une distance de 20 m et de deux étages convient parfaitement. Si la place manque, on peut aussi installer le silo dans
un bâtiment adjacent ou un réservoir enterré. La seule condition requise est un silo sec pour ne pas abîmer les granulés de bois. Dans les endroits plutôt humides, un coffrage en bois peut être utile.
Une affaire de propreté
Les résidus sous forme de granulés de l’industrie du bois sont livrés avec un camion-citerne et injectés dans le silo. La livraison de granulés de bois est donc particulièrement instantanée. Si le silo est étanche, la poussière reste à l’intérieur.

Quelle doit être la taille de mon silo ?
La consommation totale de pellets par an en tonnes se calcule en divisant par 3 la charge de chauffage en kilowatt. Pour l’encombrement des pellets en mètres cubes, on divise la charge de chauffe par 2.
Si on a besoin par exemple de 90 kW de charge de chauffe, cela représente 30 tonnes de pellets, soit 45 m3 de pellets par an. En passant au chauffage avec des pellets, on peut aussi utiliser comme base de calcul la consommation de l’autre combustible. 1 tonne de pellets correspond environ à :
• 500 l de fioul
• 520 m3 de gaz naturel
• 750 l de gaz liquide
• 600 kg de coke
• 1 400 Kwh d’électricité pour les pompes à chaleur à géothermie (coefficient de performance 3.4)
• 2 700 Kwh d’électricité pour les pompes à chaleur air-air (coefficient de performance 1.8)
Comment les granulés sont-ils acheminés vers la chaudière ?
Vis d’alimentation :
Elle s’étend sur tout le long du silo, peut atteindre 5 m de long et transporte les pellets du silo vers les tuyaux d’alimentation en bout de stockage. Une turbine d’aspiration les achemine vers la chaudière. Après le transport, les tuyaux sont balayés à l’air comprimé.
Ils ne se bouchent donc pas et fonctionnent toujours de manière optimale. Avec ce système standard, le silo peut être complètement vidé. Les parois inclinées permettent aux granulés d’être toujours orientés vers la vis d’extraction.
Le tapis antichoc est suspendu en face des manchons de remplissage pour éviter l’impact des granulés contre la paroi lorsqu’ils sont injectés dans le silo par le camion. Il faut veiller à positionner les raccords de remplissage sur la face étroite du silo afin d’assurer un remplissage idéal et une extraction performante.

1 Tubulures de reprise d’air et de remplissage
2 Vis en auge
3 Tapis antichoc
4 Kit de base du conduit d’alimentation en pellets
5 Conduite de retour et d’aspiration
Sondes d’aspiration :
Si la forme du silo ne convient pas pour une vis d’extraction, le système de sondes d’aspiration ETA est la solution idéale. Les granulés de bois glissent sur le plancher en bois lisse et incliné vers les quatre sondes d’aspiration qui transportent les granulés à tour de rôle vers la chaudière.
La commutation automatique permet de ne pas interrompre l’alimentation en combustible, même lorsqu’une sonde ne reçoit plus de granulés. Pour être utilisable, ce système nécessite d’installer le silo en face de la chaudière au même étage ou plus haut, et de limiter la longueur du silo à 4 mètres.
Contrairement à la vis, les sondes d’aspiration ne vident pas complètement le silo. Ce qui est préjudiciable si le volume de silo est limité. L’avantage, c’est de pouvoir mettre en oeuvre ce système même dans les silos non rectilignes.

1 Porte coupe-feu
2 Tapis antichoc
3 Sondes d’aspiration
4 Unité de commutation automatique
5 Conduite de retour et d’aspiration
Système d’extraction Taupe :
En raison de contraintes de construction, il se peut qu’avec les systèmes d’extractions conventionnels ETA, le volume de stockage de Pellets soit trop restreint. Pour cette raison, le système d’extraction Taupe E3 de haute qualité offre La solution la plus judicieuse.

1 Tapis antich
2 Système d’extraction Taupe E3
3 Tubes de remplissage
4 Tubes de reprise d’air
5 Tuyaux de retour et d’aspiration

1 Remplissage par une fenêtre
2 Conduite de retour et d’aspiration
L’ETAbox est une solution particulièrement pratique. Elle peut être installée directement dans la chaufferie, à l’étage, dans une grange, ou sous couvert à l’extérieur. Elle conserve les pellets au sec même dans des endroits humides. Une distance de 20 m d’aspiration de la box jusqu’à la chaudière ne pose aucun problème.
La seule contrainte est que l’ETA Box ne peut se monter accolée à un mur. C’est pourquoi l’encombrement est plus important que pour un silo en maçonnerie pour la même capacité de stockage.

La chaleur à volonté
La chaudière ePE-K ETA ne se limite pas à générer de la chaleur, elle assure aussi une répartition optimale de celle-ci par l’intermédiaire du système ETA. La régulation gère parfaitement la distribution de l’eau chaude pour votre système de chauffage.
La chaudière ePE-K ETA est équipée d’une régulation électronique pour l’ensemble de l’installation de chauffage. Que vous souhaitiez intégrer une installation solaire, une installation de préparation d’eau chaude sanitaire ou un ballon tampon avec échangeur ECS, et que l’énergie soit transmise par des radiateurs ou un chauffage au sol, vous êtes aux commandes grâce à l’écran tactile sur la chaudière, votre ordinateur ou votre Smartphone. De simples images permettent de représenter le degré d’efficacité de votre installation solaire ou le niveau de remplissage du ballon tampon.
Pas de chauffage sans ballon tampon ! Le ballon tampon ETA est le partenaire idéal de votre chaudière. Chauffer en automne ou au printemps, ou encore préparer de l’eau chaude sanitaire en été exige souvent moins d’énergie que celle générée par la chaudière. Grâce au ballon tampon, cette chaleur excédentaire est emmagasinée et disponible au besoin. Cela permet d’économiser du combustible et de moins solliciter la chaudière en évitant des démarrages à froid à répétition.
L’accumulateur à stratification est aussi le complément idéal d’une installation solaire. En été, il permet de réchauffer continuellement l’eau chaude sanitaire, à l’aide d’un échangeur de chaleur. Par contre, en hiver, les capteurs solaires parviennent rarement à générer les 60 °C nécessaires pour la
préparation de l’eau chaude sanitaire. L’eau chaude réchauffée par l’énergie solaire est ensuite recueillie par le chauffage au sol. Celui-ci travaille principalement avec des températures d’eau de chauffage de l’ordre seulement de 30 à 40 °C.
L’accumulateur à stratification ETA peut aussi être équipé d’un module échangeur ECS permettant de réchauffer continuellement l’eau chaude sanitaire à l’aide d’un échangeur de chaleur. Le risque de développement de germes et de bactéries est ainsi réduit au minimum.

1 Commande à distance via la plateforme de communication meinETA
2 Le module de circuit de mélange ETA pour deux circuits de chauffage permet d’économiser beaucoup de temps et d’argent lors de l’installation, car aucune sonde, pompe ou câble ne doivent être installés.
3 Relève de retour intégrée
4 Pour les petits systèmes de chauffage solaire avec de grands volumes de stockage tampon ou pour les très grands systèmes de chauffage solaire, le module de charge stratifiée ETA garantit une efficacité maximale.
5 Oubliez votre chaudière : Il vous permettra de savoir quand il aura besoin de vous! Quand il est temps d’ajouter du combustible, un voyant vert s’allume sur le capteur de température ambiante. Biensûr, vous pouvez également régler la température sur cet appareil compact et simple à utiliser.
6 Le ballon tampon stratifié ETA peut également être équipé d’un module d’eau chaude sanitaire qui réchauffe constamment l’eau de puisage à l’aide d’un échangeur de chaleur. Ainsi, le risque de germes et de bactéries est minimisé. L’accumulateur à stratification ETA est le complément idéal de votre chaudière à bois déchiqueté.
Il permet d’emmagasiner l’énergie superflue et de la redistribuer en cas de besoin. Pour les petits systèmes de chauffage solaire avec de grands volumes de stockage tampon ou pour les très grands systèmes de chauffage solaire, le module de charge stratifiée ETA garantit une efficacité maximale. Le ballon tampon stratifié ETA peut également être équipé d’un module d’eau chaude sanitaire qui réchauffe constamment l’eau de puisage à l’aide d’un échangeur de chaleur. Ainsi, le risque de germes et de bactéries est minimisé.
7 L’accumulateur à stratification ETA est le complément idéal de votre chaudière à bois déchiqueté. Il permet d’emmagasiner l’énergie superflue et de la redistribuer en cas de besoin.
Point forts de la chaudière pellet ETA ePE-K 100 à 240 kW
La propreté garantit une efficacité optimale
La chambre de combustion et l’échangeur de chaleur sont nettoyés automatiquement par le système ETA. Ceci augmente l’efficacité et minimise les dépenses liées à la maintenance de la chaudière. Seul le cendrier doit être vidé grâce à la compression des cendres et au grand volume du cendrier, à vrai dire, moins souvent que pour les autres systèmes conventionnels.
Introduction points forts

Nettoyage de l’échangeur de chaleur : un rendement élevé en permanence
Un mécanisme spécial, étiré par un ressort à pression, nettoie les tubulures de l’échangeur de chaleur et fait tomber les cendres par un mouvement par à-coups. Propre et efficace ! Les cendres tombent au fond de la chaudière et sont collectées par l’intermédiaire d’un disque rotatif en fonte et transportées par une vis sans fin séparée.
Cendrier : grand, mais pas trop lourd
Les cendres sont collectées dans un cendrier externe. Les deux vis sans fin de décendrage compriment les cendres et rallongent ainsi l’intervalle de vidage par rapport aux systèmes conventionnels. En option, ETA offre aussi un cendrier de très grande capacité ayant la forme d’une poubelle ou un système de transport des cendres pour les grosses installations de chauffage.
Sas rotatif

Système de haute sécurité
Le sas rotatif offre une protection absolue contre les retours de flamme : la combustion, c’est pour la chambre de combustion et nulle part ailleurs. Une vis de transport alimente le sas rotatif en granulés de bois et toujours avec la quantité optimale pour remplir le sas rotatif. Ainsi, on évite de caler les granulés dans les coins, de les comprimer ou de les broyer. Grâce à ce système conçu par ETA, les arêtes d’étanchéité du sas ne s’usent pas. La sécurité reste ainsi garantie sur l’ensemble de la durée de vie de la chaudière.
Chambre de combustion à technologie intelligente
Rendement idéal du combustible

Le combustible de combustible est poussé par le côté sur la grille rotative à segments et brûle de façon contrôlée. La chambre de combustion réfractaire à alimentation d’air ciblée permet une température de combustion élevée et donc un rrendement de combustion optimisé du combustible.
Lorsque le combustible est intégralement brûlé, la grille rotative à segments pivote complètement à 360°. Les corps étrangers, tels que des clous et/ou des cailloux, tombent alors dans la grande vis d’évacuation des cendres située en dessous.
Le râteau breveté au-dessus de la chambre de combustion élimine désormais les cendres du foyer totalement automatiquement, ce qui accroît l’efficacité de la chaudière encore d’avantage et garantit aussi une température des fumées plus faible.
Dispositif antidébordement
C’est une mesure de sécurité importante qui garantit une quantité optimale de combustible dans la chambre de combustion, sans risque de trop la remplir. Même quand la chaudière est froide après une longue période d’arrêt, ou que du bois humide, difficile à enflammer est utilisé, la chaudière n’est jamais trop remplie de bois, ce qui évite tout risque d’explosion du combustible. Le réglage du lit de braises piloté par capteur garantit toujours la quantité de combustible adéquate. Ceci constitue un atout pour les combustibles alternatifs, tels que les pellets, mais aussi pour le bois déchiqueté très sec.

Allumage optimisé pour économiser l’énergie
La chambre de combustion en pierre réfractaire reste encore assez chaude après un arrêt de flamme de courte durée pour que le combustible nouvellement introduit soit enflammé par la braise résiduelle. L’allumage silencieux ne s’active qu’après des arrêts prolongés de la chaudière. Dès que la sonde lambda et le capteur de température des fumées signalent un allumage réussi, l’allumage s’éteint immédiatement. Cela permet d’économiser de l’énergie !
Sous-pression en toute sécurité

Ventilateur de tirage EC.
Ce ventilateur assure en silence la dépression constante requise dans la chaudière. Grâce à sa technologie de moteur EC spéciale, il travaille très économiquement. De plus, le ventilateur de tirage assure l’alimentation en oxygène de la chambre de combustion et garantit donc une combustion idéale et une exploitation optimale du combustible.
La construction très sophistiquée de la chaudière permet au ventilateur de tirage de générer suffisamment de dépression dans la chaudière pour rendre superflu tout ventilateur supplémentaire comme pour les autres systèmes conventionnels. Le capteur de dépression assure une régulation encore plus efficace du ventilateur de tirage. Il mesure alors la dépression dans la chaudière et optimise l’alimentation en air dans la chambre de combustion. Ceci permet de réduire les coûts d’exploitation !
Sonde lambda

C’est maintenant au mélange de jouer.
À l’aide de la sonde lambda, le taux de mélange d’alimentation de combustible et d’oxygène est idéalement ajusté respectivement l’un par rapport à l’autre. Quelle que soit la qualité des différents combustibles, le rendement est optimal. Par ailleurs, la sonde détecte aussitôt que l’allumage a réussi. Cela réduit le temps d’allumage et économise du courant et de l’argent.
Écran tactile de 7 » (17,8 cm)

Un écran tactile capacitif au format 16:9, doté d’une plaque de verre solide et insensible, réagit désormais sans pression également, ce qui facilite ainsi l’utilisation. Afin de faciliter sa consultation, l’écran dispose désormais d’un dispositif de réglage de l’inclinaison.
Recyclage retour intégré

Il garantit un montage rapide, peu encombrant et économique car tous ses composants sont contrôlés et câblés en usine. Un capteur de surveillance de la pression de l’eau est préinstallé et un raccord supplémentaire permet un branchement optimisé du groupe de sécurité.
Réservoir de stockage directement sur la chaudière

La trémie d’une capacité de 150 kg de granulés pour les modèles de chaudières ePE-K 110-140 kW et 215 kg de granulés pour les modèles ePE-K 180-240 kW, assure un fonctionnement à pleine puissance d’au moins 5 heures sans devoir réalimenter.
La dépression nécessaire à l’aspiration des pellets est assurée par une turbine d’aspiration issue des applications industrielles. Son utilisation est extrêmement fiable et à très faible usure grâce à un moteur à commutation électronique. Les pellets sont aspirés par des tuyaux de qualité supérieure de modèle renforcé qui supportent même les volumes d’aspiration importants malgré leur diamètre standard de 50 mm.
Séparateur de particules intégrable en option

Un phénomène naturel utilisé intelligemment
Pourquoi y a-t-il toujours des dépôts de poussière sur l’écran d’un ordinateur ? Ce phénomène est dû au fait que les particules de poussière, chargées électrostatistiquement, sont attirées par l’écran.
ETA exploite cet effet dans son séparateur de particules. Les particules contenues dans les fumées sont mises sous tension et ionisées à l’aide d’une électrode située dans le conduit de fumée. Elles se déposent sur la paroi intérieure du séparateur et ne peuvent plus s’échappe avec les fumées par la cheminée.
Le séparateur de particules est nettoyé complètement et automatiquement pendant l’évacuation des cendres. La poussière est acheminée hors de la chaudière avec les cendres résiduelles dans le cendrier à l’avant.
Comme le séparateur de particules peut être intégré dans l’ eHack, un montage ultérieur ne pose également aucun problème. Il n’est pas non plus nécessaire de prévoir un espace supplémentaire dans la chaufferie.
Grâce à un taux de filtration de 80 à 85 %, le séparateur de particules permet des émissions de poussières très faibles et une consommation de courant moindre, même avec de mauvais combustibles.
Système d’évacuation des cendres externe
Afin d’augmenter les intervalles de décendrages , ETA vous propose une extension de décendrage dans des cendriers externes. Cette extension peut-être positionnée à droite, comme à gauche et à l’avant, comme de côté. Ce système ne permet non seulement une implantation facile, mais prend aussi peu de place, grâce au système spécifique de vis sans fin sans axe.
Cendrier d’une capacité de 240 litres ou de 320 litres

240 litres
Le conteneur en acier galvanisé à chaud a des roues pour facilité son évacuation et répond à l’Exigence de la norme EN 840 et est adapté au transport par les société de transport des déchets.

320 litres
La trappe situé au fond du conteneur offre une vidange confortable. Moyennant des fourches pour palettes, le conteneur peut être transporté avec un chargeur frontal ou un chariot élévateur. On déverrouille alors la trappe au fond, que si le conteneur est soit sur les roues ou quand ce dernière est sur un support sécurisé. Après avoir déverrouillé le conteneur, il peut être soulevé lentement afin d’ouvrir doucement la trappe et ainsi minimiser la formation de poussière.
Aperçu de l’intérieur de la chaudière
En route pour la chaleur
Du silo de stockage au système de distribution de la chaleur en passant par la chambre de combustion : tous les composants de haute qualité doivent fonctionner en parfaite synergie !

1 Turbine d’aspiration : Elle transporte les pellets du silo au silo intermédiaire de la chaudière.
2 Silo de stockage: Ce stockage intermédiaire de pellets permet une disponibilité immédiate pour une combustion.
3 Sas rotatif comme dispositif de sécurité incendie : Elle constitue une barrière totalement étanche entre le silo et l’allumage et garantit une protection totale contre les retours de flammes.
4 Chambre de combustion surchauffée : pour éliminer complètement les cendres de la chambre de combustion, la grille bascule automatiquement sur un angle de 90° pour faire tomber les cendres.
5 Clapets d’air primaire et secondaire : les deux clapets sont contrôlés par la sonde Lambda pour toujours alimenter la chambre de combustion avec la quantité idéale d’air. L’étalonnage automatique du signal assure en permanence que seules les données actuelles de la sonde Lambda sont traitées pour un rendement optimal.
6 Décendrage automatique dans le cendrier externe : les cendres sont transportées par deux vis séparées, mais entraînées par le même mécanisme, depuis l’échangeur de chaleur jusqu’au cendrier en passant par la chambre de combustion pour y être comprimées. Le cendrier exige un vidage moins fréquent que pour les systèmes conventionnels.
7 Ventilateur d’aspiration :Ce ventilateur assure en silence la dépression requise dans la chaudière et donc la sécurité dans la chambre de combustion.
8 Régulateur tactile à microprocesseurs : il suffit d’effleurer l’écran pour prendre en main tout le menu de contrôle. Si votre chaudière est connectée à Internet, elle vous notifie par courriel lorsque par exemple il faut vider le cendrier. En outre, vous pouvez utiliser la plateforme de communication gratuite meinETA avec le réseau partenaire et les mises à jour gratuites via connexion USB.
9 Sonde Lambda : À l’aide de la sonde Lambda, le taux de mélange d’alimentation de combustible et d’oxygène est idéalement ajusté respectivement l’un par rapport à l’autre. Quelle que soit la qualité des pellets, le rendement est optimal.
10 Nettoyage de l’échangeur de chaleur : l’échangeur de chaleur est nettoyé totalement automatiquement par des turbulateurs. Ceci permet d’assurer des rendements élevés en toutes circonstances.
11 Porte isolante avec écran tactile intégré : parce que vous voulez avoir chaud dans l’appartement, pas dans la chaufferie, la porte extérieure isolante limite les pertes calorifiques par rayonnement et même très bien.
12 Cendrier externe : Les cendres sont comprimées pour réduire la fréquence de vidage par rapport aux systèmes conventionnels. Le décendrage est simple et facile d’accès.
ETA Touch: Simple et réglable de partout
Une bonne technique, c’est d’abord une technique conviviale. Pour utiliser les nombreuses fonctions ETAtouch, pas besoin d’être un technicien.

ETAtouch: l’écran tactile de la chaudière
Le temps des boutons et des régulateurs difficiles d’accès est révolu: l’écran tactile de la PelletsCompact ETA permet d’effectuer les réglages confortablement et en toute simplicité. Les icônes sont simples et conviviales. Que vous souhaitiez augmenter ou diminuer la température de chauffage, modifier la période nocturne ou mettre la chaudière en marche réduite pendant les congés, vous n’avez pas besoin de mode d’emploi pour trouver la bonne icône !
L’écran tactile permet non seulement de régler la chaudière, mais aussi tous les composants raccordés comme le ballon tampon, le silo à pellets, l’installation solaire ou la préparation d’ECS. Vous savez immédiatement combien il vous reste de pellets ou quelle est l’efficacité de votre installation solaire.
meinETA: la plateforme Internet gratuite
Si votre chaudière est connectée à Internet, vous pouvez effectuer tous les réglages depuis votre téléphone portable, votre tablette ou votre PC. Vous contrôlez votre chauffage, où que vous soyez ! En vous connectant à www.meinETA.at, vous visualisez l’écran tactile comme si vous étiez devant votre chaudière !
Le silo à pellets doit être rempli, le cendrier doit être vidé, le temps est venu pour la prochain entretien de la chaudière… Vous n’avez plus à vous soucier de ces détails. meinETA vous envoie un message de rappel gratuitement par email.
Assistance rapide
Donnez à votre installateur ou à l’employé du service client ETA les droits d’accès à votre compte meinETA. Il peut ainsi se préparer à vous rendre visite. Il se peut même que le technicien n’ait pas à venir sur place, car il peut déjà vous dire par téléphone ce qu’il faut faire pour remettre le chauffage en marche. L’affichage d’état vous renseigne quant aux utilisateurs disposant d’un droit d’accès à la chaudière. Vous décidez toujours qui appartient à votre réseau de partenaires !
Conditions requises pour l’utilisation de meinETA
Pour pouvoir utiliser meinETA, vous devez disposer d’un accès Internet à haut débit à domicile. L’écran tactile de la chaudière est connecté à Internet avec un câble réseau. Si vous n’avez pas de connexion réseau proche de la chaufferie, vous pouvez utiliser les boîtiers CPL ETA PowerLine. Elle transmet les données au modem par chaque prise de courant.
Pour tablette, Smartphone et PC
meinETA tourne sur tous les systèmes d’exploitation courants comme iOS ou Android. meinETA peut être chargé sur un PC par l’intermédiaire de n’importe quel navigateur Internet moderne, comme Mozilla Firefox, Safari, Google Chrome ou Internet Explorer 9.
Intégration dans la commande domotique
L’intégration dans une commande domotique du client ainsi que dans un système de télégestion GTC/GTB est possible totalement sans problème. Les services Web RESTful et Modbus/TCP permettent d’interroger et de modifier des valeurs.
Les appareils ETA sont reconnus pour leur qualité irréprochable. Ils disposent de systèmes brevetés et conçus en Autriche, et le montage s’effectue à la maison mère. En cas de panne, le service client ETA avec l’assistance constructeur est rapidement sur place. Une équipe formée au dépannage et compétente est toujours là pour vous aider.
Tout se règle par l’intermédiaire d’un écran: le standard ETA
Un système de chauffage moderne est seulement efficace quand il est bien régulé. C’est précisément la tâche de l’ETAtouch.
Toutes les fonctions pour les deux circuits de chauffage, la préparation ECS (accumulateur ou échangeur ECS) et l’installation solaire sont déjà présentes dans la régulation ETAtouch, et ce sans supplément. La PelletsCompact ETA est aussi équipée en série d’une connexion Ethernet. Si vous connectez la chaudière à Internet, vous pouvez piloter tous les composants depuis votre PC, votre tablette ou votre Smartphone.
Régulation de la chaudière et de la combustion*
La régulation de la vitesse de rotation des moteurs permet d’économiser du courant électrique. La régulation par sonde Lamda et du temps d’allumage augmente l’efficacité. Tous les composants requis pour le fonctionnement sont surveillés électroniquement.
Gestion de l’accumulateur**
L’accumulateur dispose de trois à cinq sondes pour réguler le générateur de chaleur dans le système et distribuer l’énergie aux différents consommateurs. Avec cinq sondes, les régulations en cascade, la gestion de la qualité des chauffages au bois et la gestion des pics de charge sont prises en charge par le standard ETA.
Préparation ECS*
La préparati on ECS s’effectue aussi bien par l’intermédiaire du module ECS ETA, du ballon ECS ou de l’accumulateur combiné. Pour toutes les variantes, nous pouvons piloter les pompes de circulation par un programme de temporisation ou en fonction des conditions climatiques.
Installations solaires**
Nous pouvons réguler un ou deux circuits solaires avec un ou deux ballons, la stratification à travers le module de stratification ETA, et également 2 champs de capteurs ainsi que trois consommateurs.
Deux circuits de chauffage régulés en fonction des conditions climatiques**
Ils fonctionnent avec un programme hebdomadaire avec plusieurs plages horaires et des fonctions supplémentaires automatiques et/ou manuelles. En option, le système peut être complété par une sonde d’ambiance et une commande à distance.
Fonctions supplémentaires du système**
Détection d’appareils de chauffage externes, comme par exemple des chaudières fioul/gaz, pompes à chaleur et poêles à bois, thermostat simple ou thermostat de température diff érentielle, demande de chauffage d’appareils externes, comme par exemple des aérothermes, régulation de réseaux de chaleur avec ou sans vanne mélangeuse et de sous-station, régulation individuelle par pièce.
Coffret de régulation mural pour des extensions d’installation
Toutes les régulations peuvent être étendues par des coffrets additionnels fixés au mur, avec ou sans écran tactile.
* Régulation et sondes comprises dans la livraison standard
** Régulation selon la configuration, les sondes sont en accessoires

D’Autriche au monde entier
ETA est le spécialiste des installations de chauffage à biomasse, c’est-à-dire à bûches, pellets et bois déchiqueté. Les techniques les plus modernes sont utilisées conjointement aux ressources naturelles en plein développement.

ETA, c’est l’efficacité
Les techniciens désignent le rendement d’un chauffage par la lettre grecque ?, prononcée « eta ». Les chaudières ETA fournissent plus de chaleur tout en consommant moins de combustible, contribuent à la préservation de l’environnement et représentent une solution pérenne.

Le bois: ancien, mais performant
Le bois est notre combustible le plus ancien et le plus moderne. Entre le feu ouvert dans une caverne et une chaudière moderne à biomasse, une longue histoire s’est écrite. Au milieu du 20e siècle, le nombre de chauffages au bois a diminué brièvement. Le fioul était devenu le nouveau combustible à la mode. Un court intermède comparé à la longue histoire du bois.
Nous savons aujourd’hui que le chauffage aux combustibles fossiles est sans avenir. Ces derniers contribuent au réchauffement de la planète et polluent l’environnement. Leur approvisionnement n’est pas non plus garanti sur le long terme car non seulement leur quantité diminue, mais ils ne se renouvellent pas et proviennent en partie de régions politiquement instables.
En revanche, le bois est une matière première renouvelable, locale et économique, qui ne porte pas préjudice à l’environnement en se consumant. Ce n’est donc pas une surprise si le chauffage au bois connait une croissance fulgurante.
Confort ultra performant
Depuis décembre 1998, la société ETA, basée en Haute-Autriche, conçoit et construit une nouvelle génération de chaudières de chauffage au bois. Ces chaudières recèlent un grand nombre de technologies brevetées et disposent de la technique de régulation la plus moderne, elles sont donc extrêmement simples à utiliser.
Le confort et l’efficacité ont fait la renommée des produits d’ETA dans le monde entier. Avec une production capacité de 20 000 chaudières par an et un taux d’exportation d’environ 80 % dans le monde entier, ETA compte parmi les leaders de la production de chaudières à biomasse.

Vous achetez bien plus qu’une chaudière
Faire le choix d’une chaudière ETA au bois ou aux granulés de bois, c’est choisir une solution pérenne. Et pas seulement en ce qui concerne le combustible. En producteur responsable, ETA est présent à tous les niveaux. Des emplois stables sont ainsi créés dans la région.
L’usine à Hofkirchen an der Trattnach compte plus de 200 employés qui bénéficient de conditions de travail idéales, notamment d’une cantine d’entreprise, d’ateliers et d’entrepôts bien éclairés, sans oublier une station-service pour véhicules électriques alimentée par l’installation photovoltaïque de l’entreprise. Sa production permet de couvrir les besoins du bâtiment et d’économiser environ 230 t de CO2 par an.
Données techniques Chaudiere pellets eta epek 100-240 kW
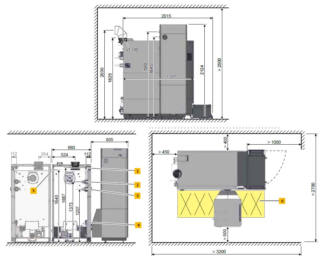
Chaudière à pellets ETA ePE-K 100 – 130 kW

1 Raccord pour la soupape de sécurité, le manomètre et du purgeur, R1“
2 Départ, R2“
3 Retour, R2“
4 Robinet de remplissage et de vidange
5Échangeur thermique de sécurité à filetage extérieur R1/2″
6Zone de maintenance à laisser dégagée

Chaudière à pellets ETA ePE-K 140 – 170 kW

1 Raccord pour la soupape de sécurité, le manomètre et du purgeur, R1“
2 Départ, R2“
3 Retour, R2“
4 Robinet de remplissage et de vidange
5Échangeur thermique de sécurité à filetage extérieur R1/2″
6Zone de maintenance à laisser dégagée

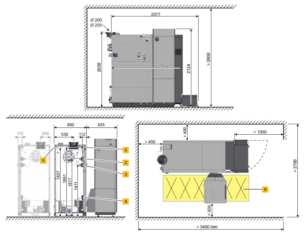
Chaudière à pellets ETA ePE-K 180 – 240 kW

1 Raccord pour la soupape de sécurité, le manomètre et la purge de R5/4“
2 Départ, R2“
3 Retour, R2“
4 Robinet de remplissage et de vidange
5Échangeur thermique de sécurité à filetage extérieur R1/2″
6Zone de maintenance à laisser dégagée
